Skip To Content

435 Otterson Drive

Chico, CA 95928
  • $13,998
  • STATUS: Active
  • ON SITE: 192 Days
  • ID#: SN25169397
UPDATED: 47 min ago
$13,998
  • 0
    BEDS
  • 5.86
    ACRES
  • 0
    BATHS
  • 0
    1/2 BATHS
Type:
Commercial-Lease
Built:
2000
County:

School Ratings & Info

Listing Agent(s): Brandon Harris of Harris Commercial Real Estate (530-419-1600)


Description

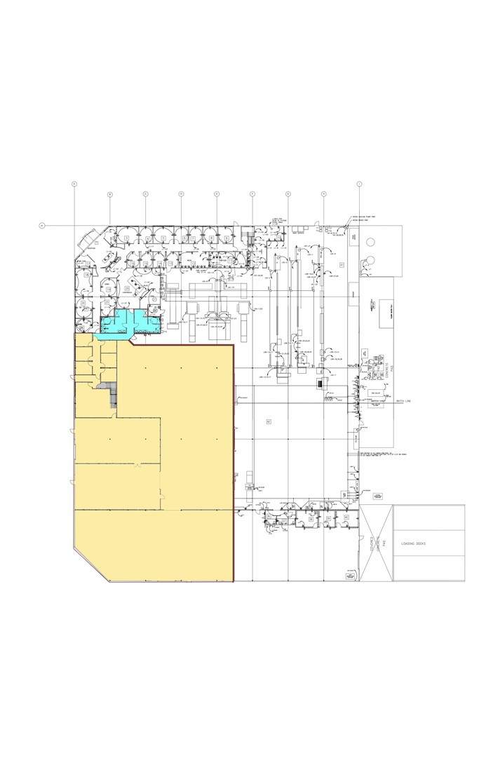
Exceptional opportunity to lease a versatile industrial manufacturing property located within the most desirable planned industrial park in Chico, CA. This expansive facility, built in 2000, is ideal for businesses seeking a strategic location coupled with modern infrastructure and ample space for growth. The property features approximately 16,432 SF of gross warehouse floor area split up into four areas including a main open area of ±7,950 SF, another open area of ±5,300 with grade-level roll-up door, and two conditioned ±1,960 SF areas, one with a grade-level roll-up door. There is a front office area consisting of ±2,233 SF including 6 private offices, an open workspace area and common bathrooms. This robust facility boasts a concrete tilt-up envelope with a joist to glue-lam roof system, interior steel support columns spaced at 25’ x 50’, and a 6” concrete slab. Zoned ML (Light Manufacturing), the property offers a wide range of permissible uses and is fully serviced with essential utilities, including City of Chico sewer and drain, Cal Water Company, Pacific Gas & Electric as well as fiberoptic cable data service. The entire facility is protected with a fire suppression sprinkler system, and provides ample parking with 25 stalls available, accommodating employees and visitors with ease. The warehouse has skylights to enhance the working environment by providing abundant natural light, reducing the reliance on artificial lighting. Yard space may be available. Located conveniently near major highways, 435 Otterson Drive is easily accessible for transportation and logistics. The property is just minutes away from Highways 99 and 32, providing direct access to Sacramento to the south and Redding to the north.



Based on information from California Regional Multiple Listing Service, Inc. as of 2026-02-06T22:28:50.867. This information is for your personal, non-commercial use and may not be used for any purpose other than to identify prospective properties you may be interested in purchasing. Display of MLS data is deemed reliable but is not guaranteed accurate by the MLS or Open Door Real Estate. Licensed in the State of California, USA.
www.kerncountyhome.com/homes/166351320
Print Image

435 Otterson Drive Chico, CA 95928

  • Price: $13,998
  • Status: Active
  • On Site: 192 Days
  • Updated: 47 min ago
  • ID#: SN25169397
0
Beds
0
Baths
0
½ Baths
5.86
Acres
2000
Built
County:
Butte
Property Description
Exceptional opportunity to lease a versatile industrial manufacturing property located within the most desirable planned industrial park in Chico, CA. This expansive facility, built in 2000, is ideal for businesses seeking a strategic location coupled with modern infrastructure and ample space for growth. The property features approximately 16,432 SF of gross warehouse floor area split up into four areas including a main open area of ±7,950 SF, another open area of ±5,300 with grade-level roll-up door, and two conditioned ±1,960 SF areas, one with a grade-level roll-up door. There is a front office area consisting of ±2,233 SF including 6 private offices, an open workspace area and common bathrooms. This robust facility boasts a concrete tilt-up envelope with a joist to glue-lam roof system, interior steel support columns spaced at 25’ x 50’, and a 6” concrete slab. Zoned ML (Light Manufacturing), the property offers a wide range of permissible uses and is fully serviced with essential utilities, including City of Chico sewer and drain, Cal Water Company, Pacific Gas & Electric as well as fiberoptic cable data service. The entire facility is protected with a fire suppression sprinkler system, and provides ample parking with 25 stalls available, accommodating employees and visitors with ease. The warehouse has skylights to enhance the working environment by providing abundant natural light, reducing the reliance on artificial lighting. Yard space may be available. Located conveniently near major highways, 435 Otterson Drive is easily accessible for transportation and logistics. The property is just minutes away from Highways 99 and 32, providing direct access to Sacramento to the south and Redding to the north.
Exterior Features

Entry Level 1 Lot Features Near Public Transit

Property Features

Additional Parcels YN No Listing Agreement Exclusive Right To Lease Property Sub Type Industrial Water Source Public



Based on information from California Regional Multiple Listing Service, Inc. as of 2026-02-06T22:28:50.867. This information is for your personal, non-commercial use and may not be used for any purpose other than to identify prospective properties you may be interested in purchasing. Display of MLS data is deemed reliable but is not guaranteed accurate by the MLS or Open Door Real Estate. Licensed in the State of California, USA.
 
https://bt-photos.global.ssl.fastly.net/socal/orig_boomver_1_374926378-2.jpg https://bt-photos.global.ssl.fastly.net/socal/orig_boomver_1_374926378-2.jpg https://bt-photos.global.ssl.fastly.net/socal/orig_boomver_1_374926378-2.jpg
Logo
Open Door Real Estate
4550 California Ave #660
Bakersfield CA, 93309
Listing Agent(s): Brandon Harris of Harris Commercial Real Estate (530-419-1600)