Skip To Content

2353 S Broadway Street

Santa Maria, CA 93454
  • $0
  • STATUS: Active
  • ON SITE: 205 Days
  • ID#: SC25162140
UPDATED: 30 min ago
$0
  • 0
    BEDS
  • 0.38
    ACRES
  • 0
    BATHS
  • 0
    1/2 BATHS
Neighborhood:
Type:
Commercial-Lease
County:

School Ratings & Info

Listing Agent(s): Steve Davis of McCarty Davis, Inc. (805-543-1801) and Stephen Mccarty of McCarty Davis, Inc.(805-543-1801)


Description

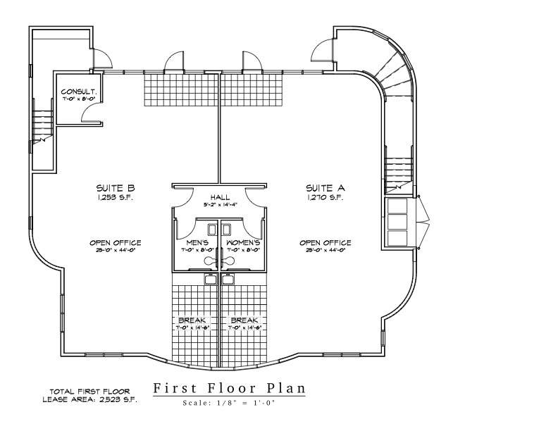
2353 Broadway St. Ste. A & B in Santa Maria is first floor office space in a well maintained, professional office building near the intersection of McCoy and Broadway. Suite A is +/- 1,270 SF and Suite B is +/- 1,253 SF. The adjacent suites can be leased separately or together.



Based on information from California Regional Multiple Listing Service, Inc. as of 2026-02-09T15:31:32.583. This information is for your personal, non-commercial use and may not be used for any purpose other than to identify prospective properties you may be interested in purchasing. Display of MLS data is deemed reliable but is not guaranteed accurate by the MLS or Open Door Real Estate. Licensed in the State of California, USA.
www.kerncountyhome.com/homes/166059827
Print Image

2353 S Broadway Street Santa Maria, CA 93454

  • Price: $0
  • Status: Active
  • On Site: 205 Days
  • Updated: 30 min ago
  • ID#: SC25162140
0
Beds
0
Baths
0
½ Baths
0.38
Acres
Neighborhood:
SMIA - Santa Maria
County:
Santa Barbara
Area:
SMIA - Santa Maria
Property Description
2353 Broadway St. Ste. A & B in Santa Maria is first floor office space in a well maintained, professional office building near the intersection of McCoy and Broadway. Suite A is +/- 1,270 SF and Suite B is +/- 1,253 SF. The adjacent suites can be leased separately or together.
Exterior Features

Entry Level 1 Lot Features Level

Property Features

Additional Parcels YN No Listing Agreement Exclusive Right To Lease Property Sub Type Office Water Source Public



Based on information from California Regional Multiple Listing Service, Inc. as of 2026-02-09T15:31:32.583. This information is for your personal, non-commercial use and may not be used for any purpose other than to identify prospective properties you may be interested in purchasing. Display of MLS data is deemed reliable but is not guaranteed accurate by the MLS or Open Door Real Estate. Licensed in the State of California, USA.
 
https://bt-photos.global.ssl.fastly.net/socal/orig_boomver_1_374809041-2.jpg https://bt-photos.global.ssl.fastly.net/socal/orig_boomver_1_374809041-2.jpg https://bt-photos.global.ssl.fastly.net/socal/orig_boomver_1_374809041-2.jpg
Logo
Open Door Real Estate
4550 California Ave #660
Bakersfield CA, 93309
Listing Agent(s): Steve Davis of McCarty Davis, Inc. (805-543-1801) and Stephen Mccarty of McCarty Davis, Inc.(805-543-1801)